Prodej bytů v Bad Aussee – novostavba v centru

260 000 Euro

Kód nemovitosti RE PBA

Novostavba v historickém domě

Centrum Bad Aussee

Možnost turistického pronájmu

Popis nemovitosti

V samotném centru malebného města Bad Aussee, zasazeného do jedinečné krajiny regionu Salzkammergut, vzniká exkluzivní rezidenční projekt, který spojuje moderní komfort s tradiční rakouskou architekturou.

Tento výjimečný projekt nabízí byty o velikostech od 45 do 170 m², které jsou ideální nejen pro vlastní bydlení, ale také jako investice s možností turistického pronájmu či druhého domova v jedné z nejvyhledávanějších alpských lokalit.

Rezidence vzniká v historicky významné budově, jejíž původní charakter je citlivě zachován a doplněn o současné architektonické prvky. Důraz je kladen na kvalitní provedení, použití lokálních materiálů a harmonické začlenění do okolního prostředí.


Hlavní parametry nemovitosti

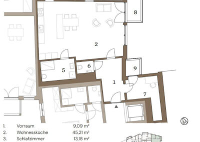
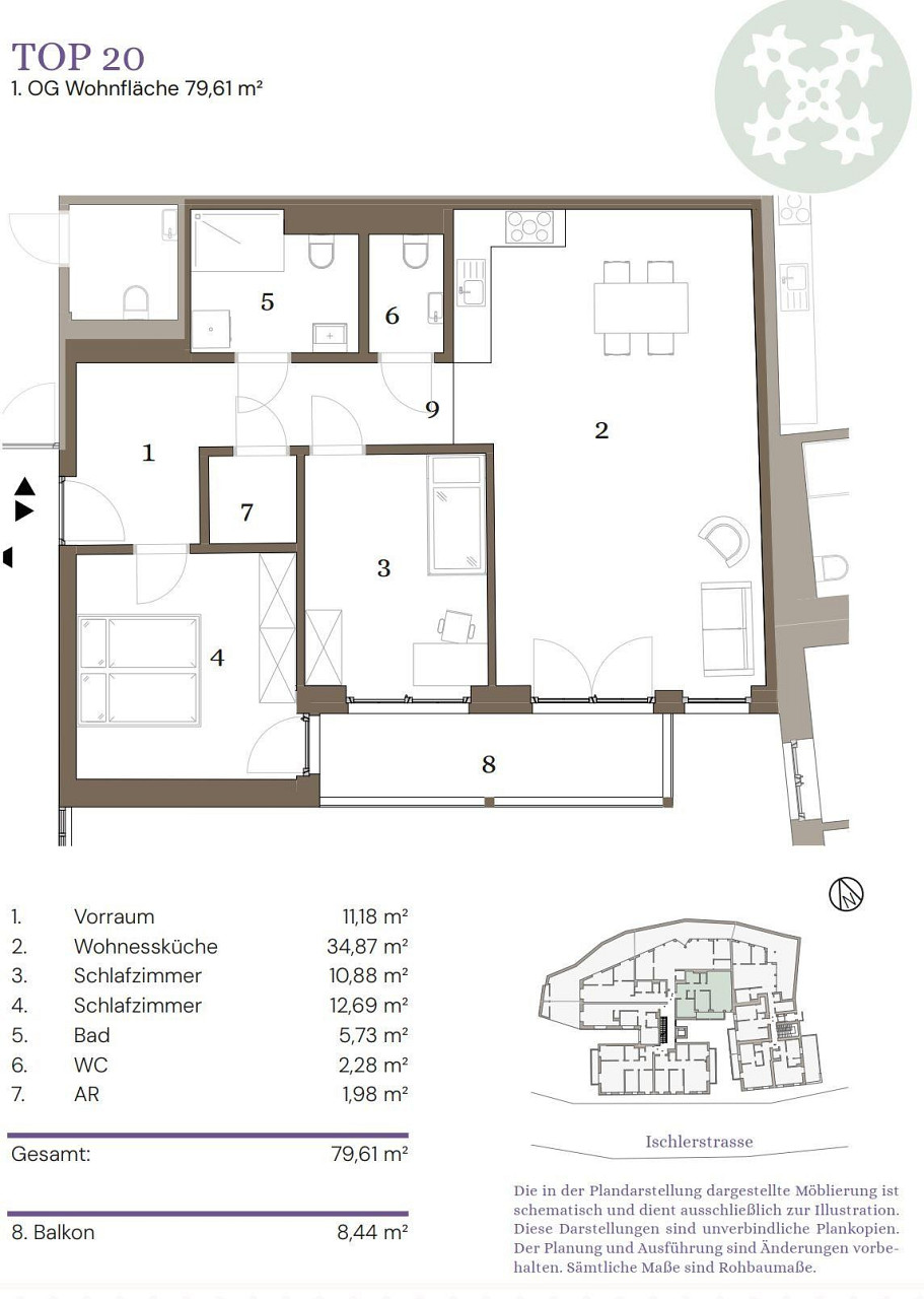
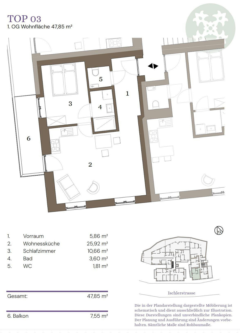
  • byty o velikostech cca 45–170 m²

  • terasy nebo balkony u vybraných jednotek

  • bezbariérový přístup

  • výtah v budově

  • garážová a carportová stání (za příplatek)

  • celkem 34 bytových jednotek + 2 komerční prostory

  • 4 podlaží

Projekt se nachází přímo v centru města, s veškerou občanskou vybaveností v docházkové vzdálenosti – obchody, restaurace, služby i zdravotnická zařízení.

Výborná dopravní dostupnost (vlak i autobus) a zároveň rychlý dosah do přírody – během několika minut se dostanete k horským scenériím, jezerům a turistickým trasám, které činí tuto oblast tak výjimečnou.

Uvedená cena od 260.000 EUR se vztahuje na menší bytovou jednotku o velikosti cca 45 m².
Další varianty, dispozice a ceny jsou k dispozici na vyžádání.

Projekt je vhodný jak pro soukromé využití, tak pro investory.


Lokalita

Město Bad Aussee se nachází v srdci malebného regionu Salzkammergut a nabízí jedinečné spojení alpské přírody, klidu a vysoké kvality života. Okolí je proslulé krásnými jezery, jako jsou Grundlsee a Altausseer See, i širokými možnostmi sportu a relaxace po celý rok.

V zimních měsících oceníte blízkost lyžařských středisek, například Loser Skigebiet, které nabízí skvělé podmínky pro lyžování i snowboarding. Díky tomu je Bad Aussee ideální nejen pro rekreaci, ale také pro turistický pronájem s atraktivním investičním potenciálem.