Byt ve Schladmingu 

Cena 670 000 Euro

Kód nemovitosti PS W1.2

možnost pronájmů

přímo u sjezdovky

Popis nemovitosti

Projekt Wohndomizil Schladming vstupuje do své druhé stavební etapy. Po zahájení výstavby v září 2024 je nyní v nabídce dalších 20 moderních bytů v domech WEST a SÜD.

Jedná se o kvalitní novostavbu v atraktivní lokalitě nedaleko centra města Schladming, s nádherným výhledem na okolní alpské hory. V konečné fázi bude projekt tvořit celkem 47 bytů ve čtyřech samostatných budovách. Byty disponují prostornými slunnými terasami nebo vlastními zahradami a parkovacími místy v podzemní garáži.

Byty jsou vhodné jak pro vlastní bydlení, tak jako investiční nemovitost. Na vyžádání vám rádi zašleme aktuální ceník a detailní informace k jednotlivým jednotkám.

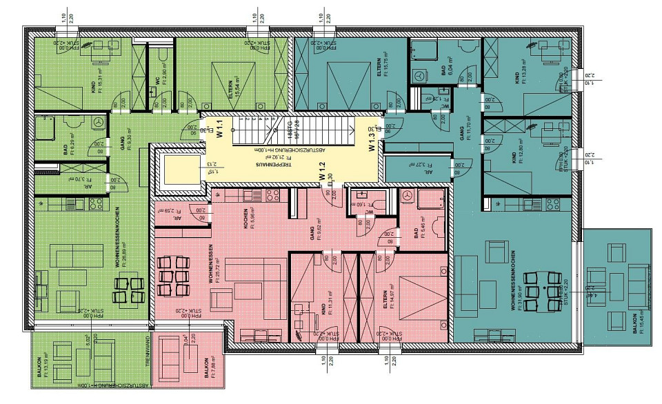
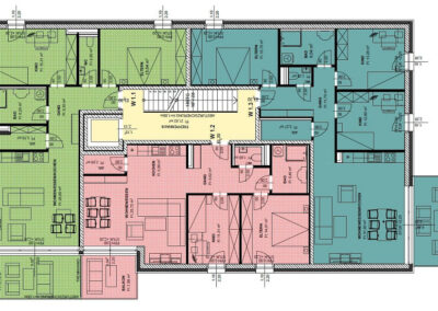
Druhá etapa projektu nabízí bezbariérové byty o dispozicích 2+kk, 3+kk a 4+kk o velikosti přibližně 52 m² až 98 m². Všechny jednotky jsou přístupné výtahem přímo z podzemní garáže. Samozřejmostí jsou světlé interiéry, kvalitní materiály a poctivá masivní konstrukce, která zajišťuje vysoký standard bydlení.

Projekt zároveň splňuje moderní ekologické požadavky – například zelenou střechu nebo napojení na centrální biomasa dálkové vytápění. Velkorysé terasy hluboké až 3 metry poskytují dostatek soukromí i přirozené stínění. Velkou výhodou je také orientace všech bytů na jih nebo západ.

Součástí projektu je klidná bezautová zóna, prostor pro kola a kočárky a komfortní parkovací stání v podzemní garáži (od 29 000 €).


Konkrétní nabízený byt

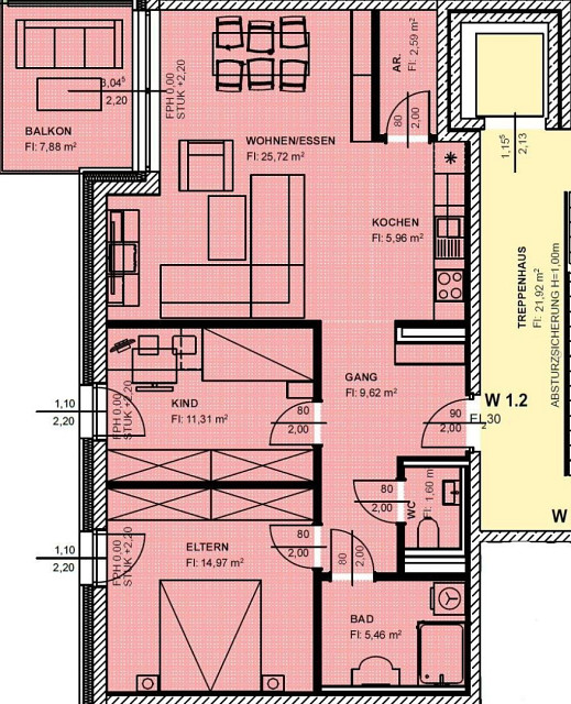
Byt W 1.2 (dům WEST, 1. patro, jednotka 2) nabízí obytnou plochu přibližně 77,2 m² a balkon o velikosti 14,3 m². K bytu náleží také sklepní kóje.

Dispozice bytu:

  • vstupní chodba

  • komora

  • koupelna

  • samostatné WC

  • prostorný obývací pokoj s kuchyní a jídelnou

  • dvě samostatné ložnice

Zakoupení parkovacího místa v podzemní garáži je součástí koupě.

Velkou výhodou je výborná poloha – centrum města Schladming i lanovka Planai jsou dostupné během několika minut chůze.


Lokalita

Schladming je známé alpské město a významné centrum zimních sportů, které hostilo mistrovství světa v alpském lyžování v roce 2013. Oblast Planai – Hochwurzen patří mezi nejvyhledávanější lyžařské destinace v Rakousku.

V zimě nabízí špičkové lyžařské tratě, běžkařské stopy, sáňkařské dráhy, zimní turistiku nebo bruslení. V létě je region ideální pro turistiku, cyklistiku, horská kola, golf, rafting či další sportovní aktivity v nádherné alpské přírodě.